Kontrolleuchten Verkabelung Digitacho

Steuerelektronik, elektr. Ausstattungen, etc. (Corsa B)
Antworten
Benutzeravatar
Pj187
Früheinfädler
Früheinfädler
Beiträge: 170
Registriert: 18.06.2012, 22:50
Fahrzeug: B 1,4

Kontrolleuchten Verkabelung Digitacho

Beitrag von Pj187 »

Hi Leute,
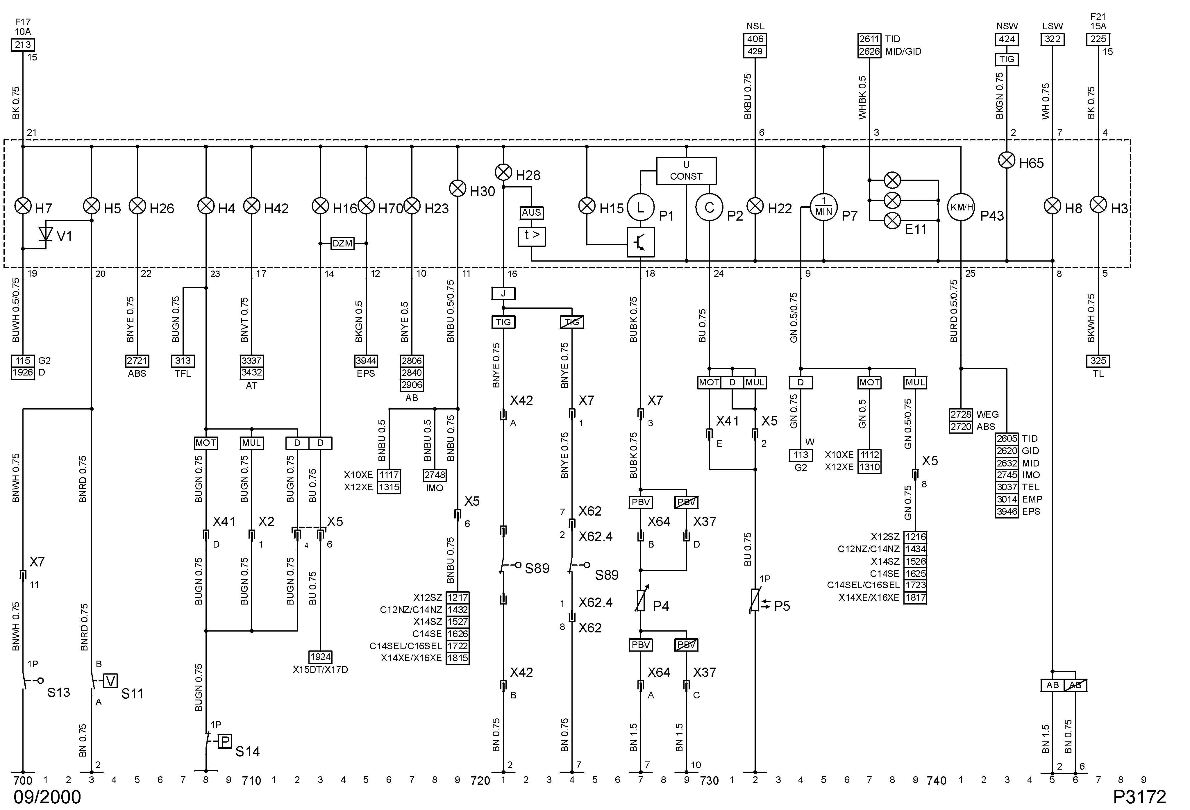
ich bastel mir gerade ein Digitacho zusammen.
Da ich das Mäusekino hinten flacher gestaltet habe entfällt der schwarze Stecker X9 und ich muss die Birnen einzeln versorgen.

Kann ich an das Birnchen der Motorkontrolleuchte auf einer Seite normal Masse anlegen und auf der anderen das braun/blaue Kabel, also Pin 11 des Tachosteckers, am Corsakabelbaum anlegen?

MfG

H30 = MKL
Dateianhänge
schaltplan.png
schnuelf
ADAC-Holer
ADAC-Holer
Beiträge: 6
Registriert: 17.12.2012, 17:19

Re: Kontrolleuchten Verkabelung Digitacho

Beitrag von schnuelf »

MKL ist wenn ich das jetzt richtig um Kopf hab genau wie Airbag Masse gesteuert.
Also musst du auf der Seite die nicht vom Tachostecker kommt Zündungsplus, also Kl.15 anlegen
Antworten

Zurück zu „Elektronik (Corsa B)“